Działka budowlana, ul. Kościelna
Kościelna, Smolec, dolnośląskie
- 480 000 zł
- 3 000 m²
- 160 zł/m²
Dariusz Wolski
Skontaktuj się
Działka budowlana, ul. Kościelna
Kościelna, Smolec, dolnośląskie
zaktualizowane:
13 kwietnia 2026
Działka budowlana, ul. Kościelna
Zaktualizowane: 13 kwietnia 2026
480 000 zł 3 000 m² 160 zł/m²
budowlana
-
-
-
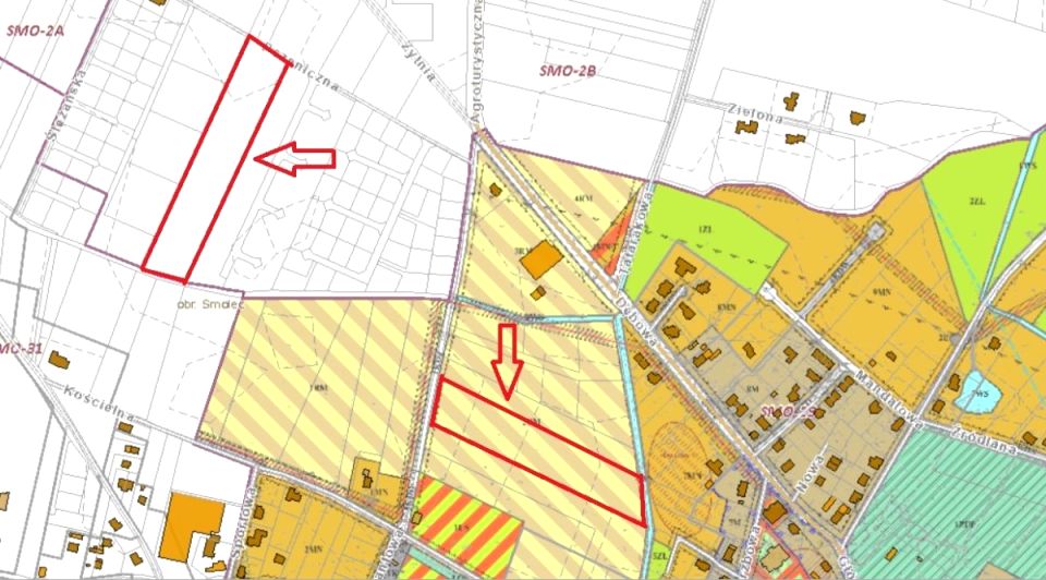
Zobacz na mapie
Rodzaj działki:
budowlanaDojazd:
-Kształt:
-Media:
-Szczegóły ogłoszenia
- Typ oferty: działka na sprzedaż
- Cena: 480 000 zł (160 zł/m²)
- Działka: budowlana, 3 000 m²
- działka nieogrodzona
- Źródło: biuro nieruchomości: D.Wolski DCN Dolnośląskie Centrum Nieruchomości, zaktualizowane: 13.04.2026
- numer ogłoszenia: 166630548
Oferta na wyłączność – nie szukaj dalej
Lokalizacja
- Adres: Kościelna, Smolec, Kąty Wrocławskie, wrocławski, dolnośląskie
Opis nieruchomości
Działki Gruntu 1,9 ha oraz 1,7 ha,do kupienia w całości lub podzielone na mniejsze działki, każda o powierzchni3000 m2 lub 5000 m2. Przeznaczenie w MPZP to działki budowlane - ZabudowaZagrodowa.
Położenie działek i cechy:
- działka o pow. 1,7 ha ok. 150 m odul. Kościelnej, na skraju osiedla domów jednorodzinnych przy terenach sportoworekreacyjnych. Media: woda, prąd, tel. Kanalizacja deszczowa przy ul.Kościelnej. (...)
502 344...
502 344 635
71 344 05 52

